
金沢エリア
【金沢市畝田】
1階部分断熱フルリフォームし、リビングと店舗スペース行き来が出来るように間取りを変更しました。
ワンちゃんも過ごしやすいよう、滑りにくい無垢の床を使用。
壁には自然素材の漆喰塗装を施しました。
間取り:1階まるまるリフォーム
施工期間:3か月
完成:令和3年5月
施工費の目安:1000~1500万円
施工費の目安
![]()
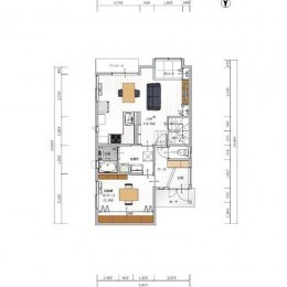
リフォーム図面
![]()
担当スタッフコメント


リビング階段にしたり、洋室スペースを縮小させ、洗面をこれまでより大きくとって、
リビング~店舗への動線を確保し、使い勝手のよい間取りとなりました。
![]()
お客様体験談
心地よく安心して暮らせる、終の棲家のためのリフォーム。
このリフォームのきっかけは、築33年の木造住宅の寒暖差に悩まされ、引退後も健康的に安心して暮らせる家にしたいと思ったことでした。セイダイリフォームを選んだ理由は、部屋ごとの温度差のない高気密・高断熱の家づくりが強みだったためです。1階の間取り変更、断熱工事、無垢フロア材やシラス漆喰壁、ワンちゃん専用のサンルーム出入口など、細部までこだわりが詰まったリフォームとなりました。
間取り変更では各部屋を行き来しやすくし、生活の動線をスムーズにするために工夫しました。さらに、インナーサッシを設置して断熱工事を行ったことで、部屋の寒暖差が解消され、冬の寒さも大幅に緩和されました。お風呂やキッチンなどの水回り設備も一新しました。
また、ワンちゃんの足への負担を減らす無垢フロア材や、調湿・防臭効果のあるシラス漆喰の壁、そしてサンルームに設けた犬専用の出入り口など、家族もワンちゃんもストレスなく暮らせる空間を実現しました。24時間換気システムにより、ペットの匂いもまったく気になりません。
色々とこだわりを詰め込んだリフォームとなりましたが、自分の理想的な空間が叶って心から満足しています。リフォームの際には、思いついたアイデアはその場で相談することが重要であると感じました。